Blanchard Recreation
On the Horizon
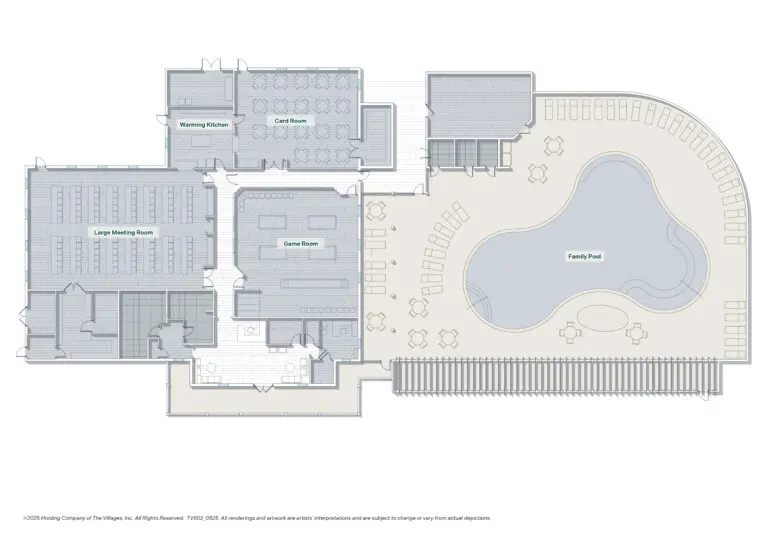
Meet Blanchard Recreation, a brand-new center currently under construction in the Eastport area. Inspired by the wonder of flight, Blanchard Recreation will offer a unique hot air balloon theme throughout its design. Plans already include a lively game room and a family pool, with additional features to be unveiled as construction continues.
Come visit and experience
the lifestyle our residents
enjoy every day!
Play golf, pickleball, enjoy FREE nightly entertainment and try something new.
Stay from 4-7 nights in a private Villa, complete with golf car and bicycles, perfect for exploring The Villages and what your life could be like living in Florida’s Friendliest Hometown.

















